Rénovation d'une maison de village à La Motte en Champsaur

maison en rénovation
rénovation énergétique
rénovation lourde
Insertion du projet
Plan de masse
Plan en coupe
Façades
Façades
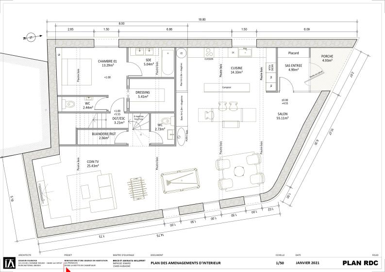
Plan des aménagements d'intérieur : rez-de-chaussée
Plan des aménagements d'intérieur : étage
Rénovation, rénovation thermique
Habitat

Le projet consiste à la rénovation énergétique d'une maison de village. L'intégration du bâtiment dans son environnement proche en cœur de village a guidé les choix des matériaux et composition des façades.

Maître d’ouvrage
Madame et Monsieur Willefert

Les Prenach
05500La Motte en Champsaur
France

Décembre 2021
05 - Hautes-Alpes