





Requalification complète d’un corps de ferme afin de créer un club house pour un centre hippique ainsi qu’un logement de fonction.
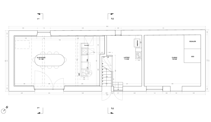
Les deux programmes développés s’imbriquent dans la verticalité permettant de créer une séparation claire entre les usages. Le rez-de-chaussée est occupé par le club house, se retrouvant donc en relation directe avec le centre hippique et ses utilisateurs tandis que le logement se déploie à l’étage grâce à un accès privatisé au rez-de-chaussée.
Le club house au plan simple et modulable est ainsi en capacité d’accueillir un maximum de manifestations hétéroclites.