




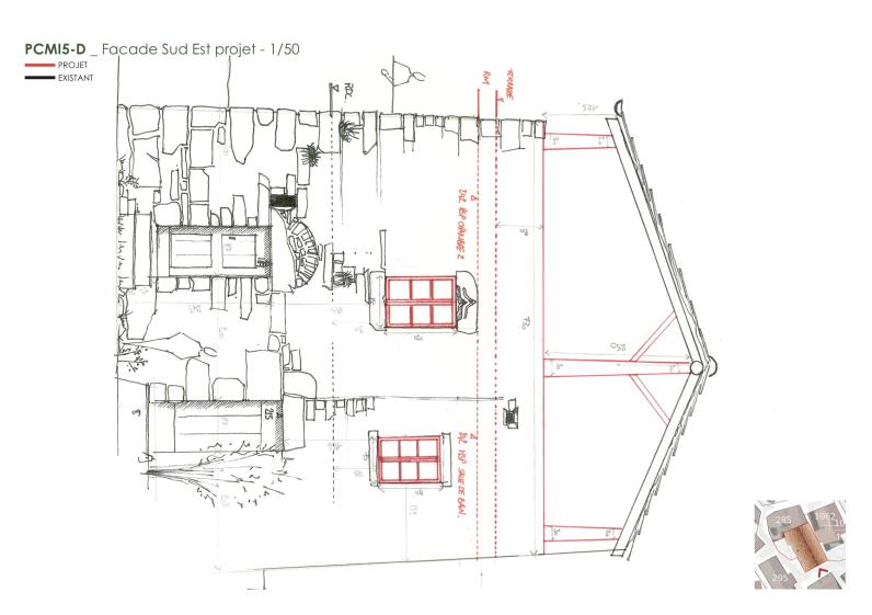
Rénovation d’une maison de hameau en pierre datant des environs du 18°siècle.
La rénovation porte sur la réorganisation des espaces de vie, la modification des ouvertures en façade dans le respect de l’architecture traditionnelle, afin de maximiser l’apport de lumière et l’ouverture vers le paysage
Rénovation thermique et énergétique complète :
-Systèmes de chauffages, et d’eau chaude sanitaire vertueux et résilient
-Installation d’un système de ventilation et d’une isolation pertinente
-Gestion de l’humidité
-Reprise des enduits de façades pour améliorer la migration de la vapeur d’eau et gérer les remontées capillaires