02

Façade Sud
Vue intérieure
Vue intérieure
Vue intérieure
Vue extérieure
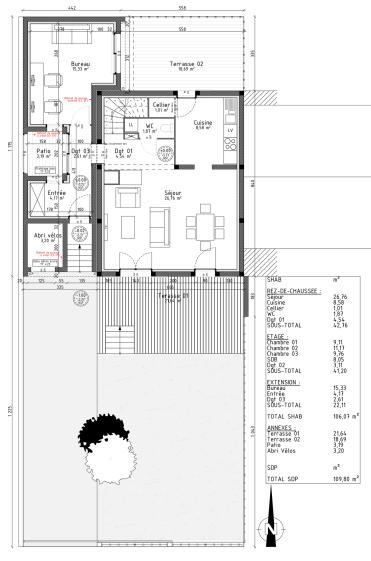
Plan
Volumétries

Extension d'une maison individuelle

Mission : ESQ > DET + AOR

Surface : 23 m²

Particularité : Construction en limite de propriété

Maître d’ouvrage
Privée
2022
13 - Bouches-du-Rhône