LOGEMENTS ET LOCAL DE VENTE/EXPOSITION à GIVRY (71)

1.jpg
2.jpg
3.jpg
coupe.jpg
4.jpg
Rénovation, rénovation thermique
Etablissement recevant du public (ERP)
Habitat
Rénovation, rénovation thermique
Culture
Tertiaire
Habitat

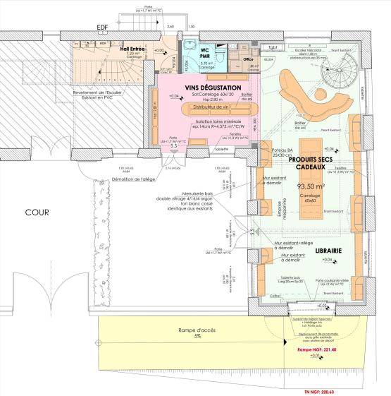
Création de Logements et d’un local de Vente/Exposition de Produits Locaux dans le Bâtiment de la Poste

Maître d’ouvrage
Commune de Givry

Place de la poste
71640GIVRY
France

2017
71 - Saône-et-Loire