 
  

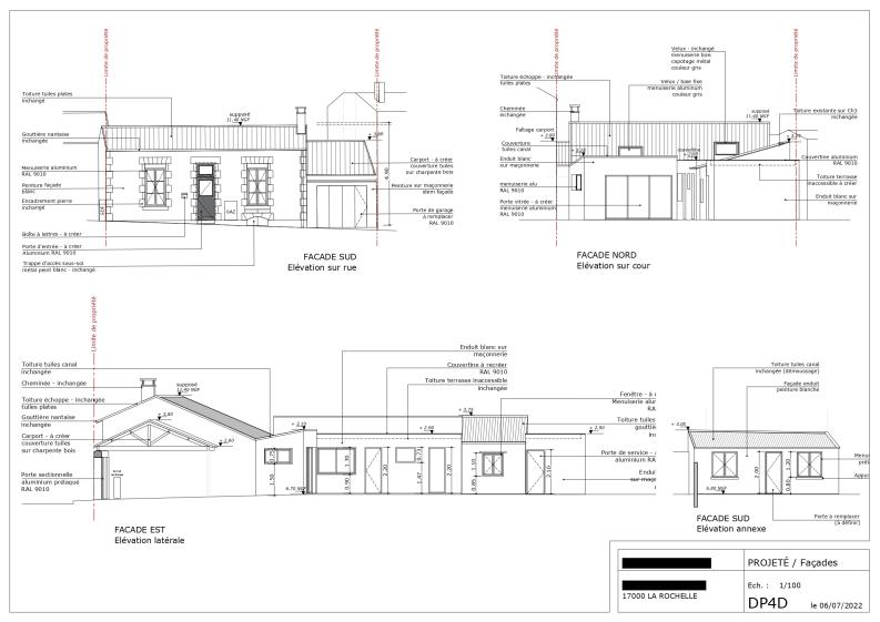
Ce projet de rénovation et de transformation d’une maison individuelle vise à repenser entièrement son organisation intérieure, afin de répondre aux besoins des nouveaux occupants tout en valorisant le bâti existant. L’approche architecturale combine une rénovation complète, une restructuration des espaces et une extension ciblée, avec pour objectif principal d’optimiser la lumière naturelle, de fluidifier les circulations et de reconnecter la maison à son environnement.
Les interventions comprennent le décloisonnement des volumes, l’ouverture de murs porteurs et la création d’un espace de vie traversant, largement ouvert sur le jardin. Cette nouvelle configuration offre une meilleure continuité visuelle et physique entre les pièces, tout en transformant l’ambiance intérieure en un lieu clair, fluide et chaleureux.
Les deux pièces sur rue, situées de part et d’autre du couloir d’entrée, sont entièrement repensées pour accueillir des chambres d’enfants lumineuses et fonctionnelles, parfaitement adaptées à une vie de famille. À l’opposé, une suite parentale est aménagée pour offrir un espace nuit indépendant, calme et confortable.
Le projet prévoit également la transformation d’une annexe existante en studio autonome, pensé pour la location saisonnière, l’accueil d’un proche ou un espace d’appoint indépendant. Doté de son propre accès, ce studio à louer renforce la polyvalence d’usage du lieu tout en offrant une opportunité de revenu complémentaire.
En fond de parcelle, la démolition d’un ancien abri de jardin permet de libérer les vues et d’ouvrir davantage l’espace extérieur. Un carport fermé, directement accessible depuis la rue, est également créé. Pensé en continuité avec la maison existante, il assure un stationnement discret et sécurisé, parfaitement intégré à l’aménagement général.
Ce projet illustre une rénovation contemporaine de maison individuelle respectueuse de l’existant, centrée sur la qualité des espaces intérieurs, la circulation fluide, et l’apport de lumière naturelle. Il offre une réponse sensible aux enjeux actuels de confort, de modularité et d’ancrage dans le cadre de vie.
Surface : 105 m²
Mission partielle limitée à la demande d'autorisation d'urbanisme.