


Ce projet de construction d’une maison neuve prend place sur une parcelle enclavée issue d’une division foncière, en cœur d’îlot. Conçue de plain-pied, la maison s’intègre harmonieusement dans un jardin généreusement végétalisé, favorisant une forte continuité entre les espaces intérieurs et extérieurs, et une véritable qualité de vie en milieu urbain.
L’architecture repose sur la composition de deux bâtiments distincts : la maison principale, à l’organisation fluide et lumineuse, et un garage indépendant, en retrait de la rue, reliés entre eux par un patio ouvert. Ce vide structurant agit comme une respiration dans le projet et permet une transition douce entre les volumes bâtis tout en ouvrant de multiples vues vers le jardin.
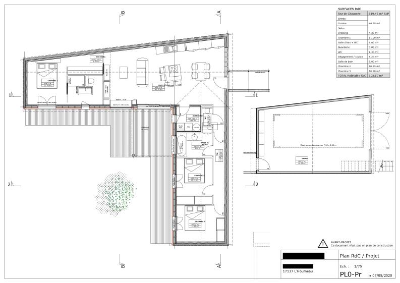
La maison s’organise en L autour d’un espace central accueillant le dégagement d’entrée, une salle à manger attenante à la cuisine, ainsi qu’un salon largement ouvert sur l’extérieur. Cet espace de vie, baigné de lumière naturelle, forme le cœur du projet, pensé pour favoriser les échanges et le confort au quotidien.
L’aile nuit regroupe deux chambres secondaires accompagnées de leurs annexes (salle d’eau, rangements), tandis que la suite parentale, située à l’opposé, bénéficie d’un dressing et d’une salle de bains privative. Toutes les pièces de la maison disposent d’un accès direct au jardin par des terrasses privatives, renforçant la relation au paysage et l’ouverture vers l’extérieur.
Le garage est positionné à l’alignement des constructions existantes, en retrait de la rue, ce qui permet de libérer un espace pour créer une place de stationnement à l’avant de la parcelle. Il offre un important volume de stockage, idéal pour abriter des équipements sportifs ou du matériel d’usage quotidien. À l’étage, un studio indépendant, accessible depuis l’extérieur, complète le projet. Il peut accueillir un logement d’appoint, un bureau pour le télétravail, un atelier ou un espace d’hébergement indépendant.
Ce projet allie rationalité du plan, ouverture sur le jardin et diversité d’usages, pour offrir une maison contemporaine, fonctionnelle et adaptée aux modes de vie actuels, entre vie familiale, travail à domicile et intimité urbaine.
Surface maison : 132 m²
Mission partielle limitée à la conception du projet architectural et à la conception finale détaillée du projet.