




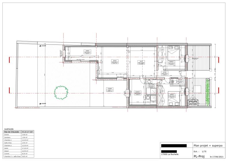
Ce projet consiste en l’extension et la transformation complète d’une échoppe bordelaise, typologie emblématique de l’habitat urbain à Bordeaux. L’intervention a pour objectif de révéler le plein potentiel de la maison existante en réorganisant ses espaces intérieurs et en l’ouvrant largement sur le jardin.
L’extension en ossature bois, pensée comme un prolongement naturel de la construction d’origine, vient moderniser l’ensemble tout en respectant le caractère architectural de l’échoppe. Son écriture contemporaine et légère dialogue harmonieusement avec l’existant, tout en affirmant une nouvelle qualité d’espace et d’usage.
À l’intérieur, la distribution est entièrement repensée pour offrir des volumes plus clairs, plus lisibles, et mieux adaptés aux modes de vie actuels. Les espaces sanitaires sont restructurés pour gagner en confort et en fonctionnalité. L’ouverture de murs porteurs permet de créer un espace de vie généreux, traversant, baigné de lumière naturelle, et largement tourné vers le jardin.
En fond de parcelle, un préau orienté plein sud vient compléter l’aménagement extérieur. Véritable pièce à ciel ouvert, il prolonge les usages vers l’extérieur et structure une relation directe, apaisée et végétale entre la maison et son jardin.
Côté rue, le jardin d’entrée est entièrement réaménagé. Il valorise l’accès à la maison, tout en assurant une transition douce entre l’espace public et l’univers plus intime de l’habitation, participant à créer une séquence d’entrée soignée et agréable.
Ce projet conjugue le charme de l’ancien et la fonctionnalité d’une organisation contemporaine, en mettant l’accent sur les apports de lumière, la fluidité des circulations, les vues dégagées et la qualité de vie en cœur d’îlot. Il illustre une manière sensible et durable de transformer l’habitat traditionnel en un lieu de vie adapté aux exigences actuelles.
Surface : 95 m²
Mission limitée à la conception architecturale du projet et obtention de l'autorisation d'urbanisme.