






Dans un lotissement sur la côte bleue près de Marseille une maison de vacance familiale accueille un couple et ses 2 enfants depuis plus de 10 ans. La maison a été construite dans les années 60's par le grand père de l'habitant dans l'optique de passer des vacances et la retraite et n'a jamais fait l'objet de travaux depuis. Elle est donc vétuste, avec des matériaux usés et génère de l'inconfort thermique (hiver et été). Face à des problème structurels et la nécessité de réaliser des travaux, les habitants nous appelle afin de réaliser une esquisse pour réaménager la maison avec différentes demande, disposer d'une pièce de bureau, d'une chambre d'amis, d'améliorer le rapport à l'extérieur, de régler les problème d'acoustique et thermique, etc.
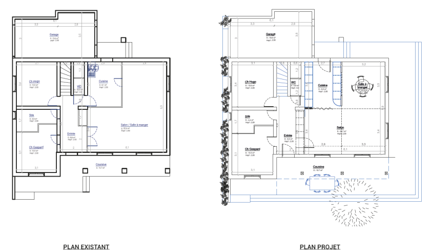
Nous avons réaliser un dossier d'esquisse avec 3 propositions spatiales aux budgets variables. Nous présentons ici la première, la plus économique qui répond au souhait de ne pas changer le volume de la maison et de travailler la flexibilité des espaces existants, tout en mettant l'effort sur les extérieurs.
Nous avons travailler sur une division de l'espace en 4 sous espace pouvant s'interchanger (excepter la cuisine) avec une salle à manger qui peut devenir salon, chambre d'ami, etc. au grès des saisons et des envies.
Projet à suivre !