
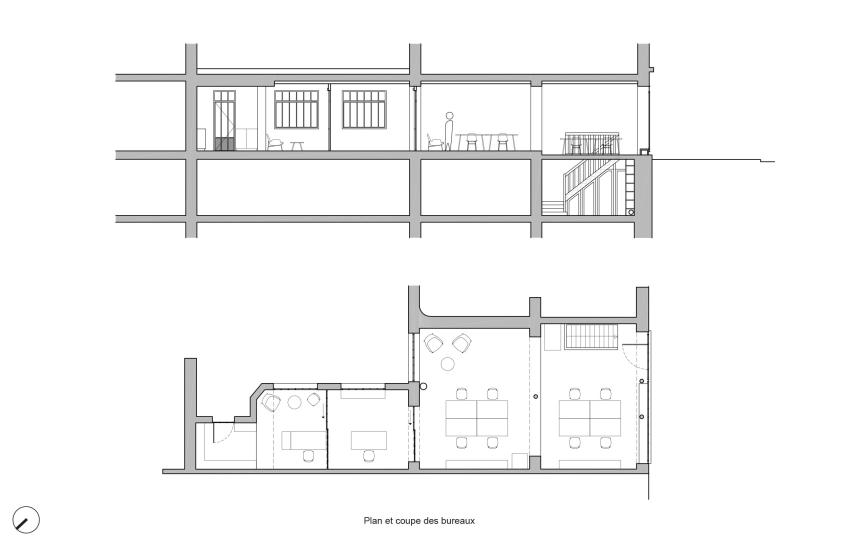
Le projet porte sur la rénovation intérieure et la modification des façades d’un local de bureaux en rez-de-chaussée d’un immeuble haussmannien.
Les locaux sont destinés à accueillir 2 entreprises, ainsi qu’un espace ouvert pour la location de 4 postes de travail à la journée.
Les espaces intérieurs sont intégralement rénovés, puis cloisonnés avec 2 parois vitrés pour créer 2 bureaux fermés en enfilade.
En sous-sol, la cuisine est rénovée et aménagée pour être utilisée en salle de réunion.
L’ensemble des menuiseries intérieures et extérieures est conçue en aluminium noir pour rappeler le style des verrières d’ateliers .