


Programme des travaux :
Travaux en une seule phase avec déplacement des commerçants dans un marché provisoire, inclus dans la mission.
Entreprises / partenaires :
Rénovateurs Franciliens (gros œuvre), HERKRUG Etanchéité (résine de sol), METALBAT (métallerie), ABC (faux-plafonds), MB Peinture (peinture), LUMAGE (électricité, plomberie CVC), Amplitude Graphique (agencement d’étals), BatiPlus bureau de Contrôle
Maître d’ouvrage : Loiseau Marchés
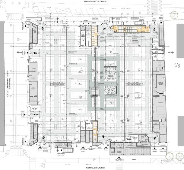
Programme : Réaménagement de la halle de marché couvert du centre-ville
Montant des travaux : 1 520 000 €HT (halle) + 263 000 €HT (marché provisoire)
SHO : Halle de marché : 3 000 m²
Mission : Base loi MOP + OPC
Maîtrise d’œuvre :
Yves Goyet architecte (mandataire),
TEAMOR bet électricité
Avenue Anatole France & avenue Jean-Jaurès
94220Charenton-le-Pont
France