Aller au contenu principal
Menu
Fil d'Ariane
Accueil
PABLO PALOMINO ARCHITECTE
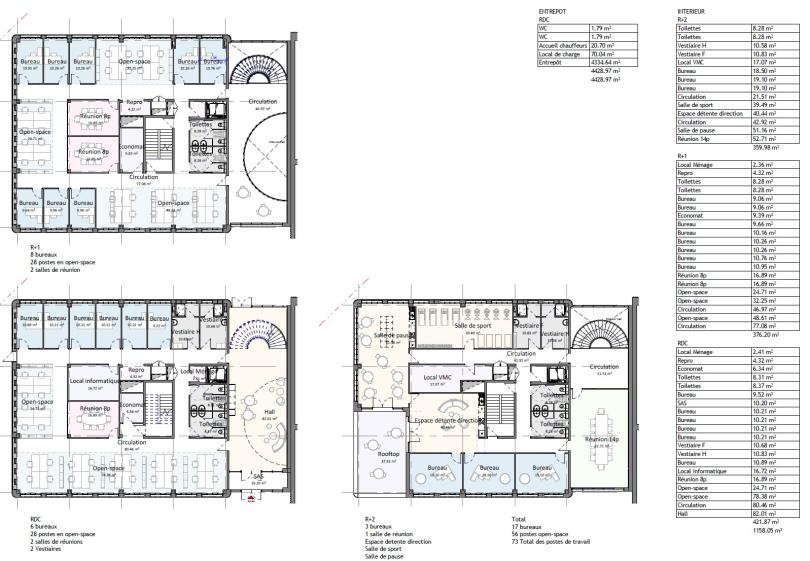
BATIMENT DE BUREAU ET INDUSTRIEL
BATIMENT DE BUREAU ET INDUSTRIEL
Concours
Maître d’ouvrage
GreenPower
LA GRANDE LANDE
35370
ETRELLES
France
CONCOURS
35 - Ille-et-Vilaine
PABLO PALOMINO ARCHITECTE