

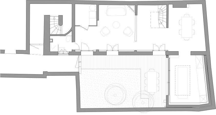
L’appartement est situé au rez-de-chaussée et premier étage d’un bâtiment sur cour . Il dispose d’un accès indépendant depuis la cour de l’immeuble, d’un jardin en jouissance exclusive et d’un cabanon mitoyen à l’appartement d’environ 6 m² .
Le projet comprend :
- l’extension de l’appartement sur le jardin en remplacement du cabanon, qui permettrait d’y accueillir une grande cuisine lumineuse et ouverte sur la terrasse ;
- la rénovation d’une partie du rez-de-chaussée de l’appartement, notamment la cuisine actuelle transformée en entrée – placard – buanderie, le sanitaire actuel transformé en petite salle d’eau avec WC ;
- le réaménagement du jardin.
L’extension est créée dans l’esprit du bâtiment existant, enduit blanc, couverture zinc ; la verrière en toiture et la baie vitrée en façade permettent un apport lumineux important, malgré la situation à rez-de-chaussée et l’orientation au nord. La terrasse bois créée face à la cuisine se poursuit par une allée en bois devant les fenêtres de l’appartement, de niveau avec le jardin et l’intérieur de l’appartement.