













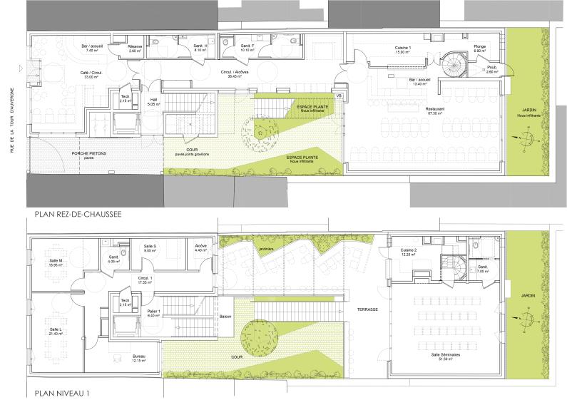
Implanté au cœur du quartier Ile de Nantes, Marietta est un ensemble pluriactivités ouvert à tous, toute la journée. L’établissement regroupe en son sein :
- un café et un restaurant, activité principale et liant social au rez-de-chaussée,
- des espaces de formations, de réunions et séminaires, à louer, au niveau 1,
- les bureaux d'une société travaillant dans le secteur du numérique, au niveau 2.
Le projet architectural est composé de deux volumes (un R+2+C sur rue et un R+1 en cœur de parcelle) "posés" sur un socle commun. Les différentes activités s'organisent autour d'une cour centrale et d'une terrasse au R+1.
Côté rue, la façade reprend une écriture architecturale sobre et faubourienne en rapport avec la séquence urbaine (17 au 15 rue Louis Blanc puis 17 au 13 rue de la Tour d’Auvergne) :
- porche calé sur la hauteur de la devanture du café et en cohérence avec la façade voisine,
- grille au barreaudage vertical transparente et ouverte la journée,
- composition de la façade avec des fenêtres verticales sur appui béton et zinguerie,
- ardoises sur toiture à la Mansart compris lucarnes et habillage vertical des lucarnes en zinc.
Son écriture architecturale utilise trois teintes classiques : le blanc pour l’enduit, le bois clair pour les menuiseries extérieures et le gris ardoise pour la toiture, les lucarnes, le portail et la serrurerie.
L'architecture de la cour joue sur un registre différent (en lien avec l’ancienne cour et ses granges en bois) : bardage bois teinte naturelle et menuiseries aluminium gris moyen, cour plantée et pavée, noues d’infiltration plantées et mur mitoyen en pierre apparente.
En arrière-plan de la cour, le restaurant offre une transparence vers le petit jardin de fond de parcelle. A l’étage, la terrasse centrale, accessible par un grand escalier métallique, est protégée du soleil par une pergola qui accueillera de la végétation grimpante. Au-dessus côté cour, le toit terrasse accessible est végétalisé.
SP : 617 m²
Budget : 1.74 M€HT
Mission : Complète
Mandataire : NINAWAK
Co-traitant : IN&MAA – mission OPC
Photos Stéphane Chalmeau ©