






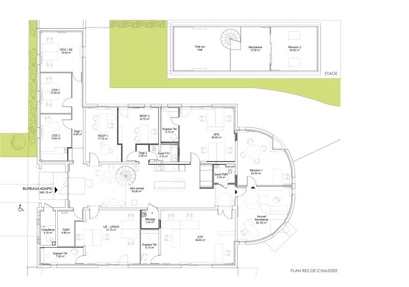
Situé à Saint-Herblain, le bâtiment accueillait un Institut Médico Educatif pour jeunes enfants. L’accueil n’ayant plus de raison d’être depuis 2022, l’ADAPEI souhaite transformer cet établissement en bureaux pour ses salariés.
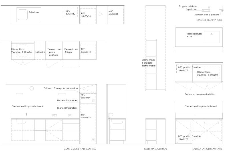
Le hall central, autrefois sombre et encombré, devient un lieu de convivialité, d’échange et de partage avec ses grands fauteuils confortables, sa cuisine ouverte, une longue table qui lui fait face et une alcôve plus intime. Il dessert tous les autres espaces : secrétariat, salles de réunion, bureaux, locaux techniques.
Les grandes salles de travail et d’activités deviennent des bureaux mutualisés occupés par quatre personnes. Ils ouvrent chacun sur un petit espace fermé, chaleureux et reposant (moquette, fresque végétale, lumière chaude, teintes douces) qui permet de s’isoler ou de téléphoner sans gêner ceux qui travaillent.
SP : 397 m²
Budget : 170 000 €HT
Mission : Complète
Mandataire : NINAWAK