





• Date de livraison : 2010-2016
• Ville : Marennes
• Département : 17
• Maitre d'ouvrage : particulier
• Coût : n.c.
• Nature de la mission : projet seul
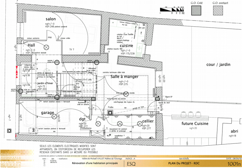
Deux phases de projet, d'abord la refonte de la maison principale avant emménagement. un escalier brise la vue de la rue, derrière des mouvements de cloisons dilatent l'espace pour trouver une largeur confortable à la pièce de vie.
Puis, plus récemment, l' "expulsion" de la cuisine dans un volume sur le jardin.