Montauroux

architecte montauroux
architecte montauroux
architecte montauroux
Neuf

Architecte: tel: 06 28 08 48 63, email: atelier.kb2@gmail.com

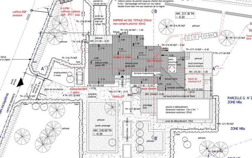
Élaboration du permis de construire d'une d' une maison individuelle.
Localisation: Montauroux (83440) chemin des Esclapières.
Surface habitable de la maison d'environs 234m2m²


Bâtiment traditionnel, avec un travail sur l'aménagement paysager du jardin. Rajout de bardage pierre par endroit de la maison.

83440Montauroux
France

2015