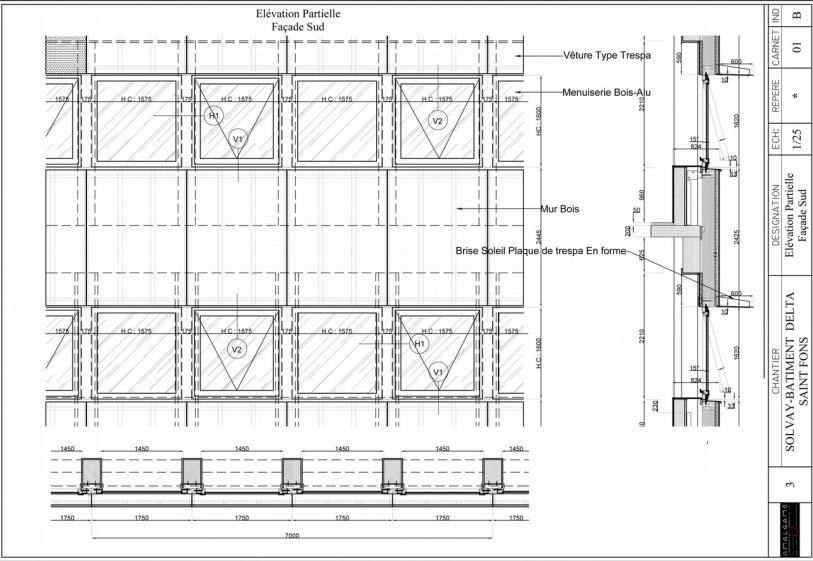
Rénovation Energétique du Bâtiment de Rhodia à St Fons (69)

plan_268-02a.jpg
carnet_02-b_menuiseries_ext.jpg
image4.jpg
carnet_01-c_menuiseries_ext.jpg
268_-_elevations_sud_et_nord_-_projet_lumiere.jpg
rodhia_a_saint_fons_-_plan_masse.jpg

• Date de livraison : Chantier en cours
• Ville : St Fons
• Département : 69
• Maitre d'ouvrage : RHODIA SOLVAY
• Architectes associés : X.MAUCOURT / A.MADIGNIER
• Coût : 2.4 M € HT
• SHON : 3900 m²
• Nature de la mission : BASE+EXE+OPC