





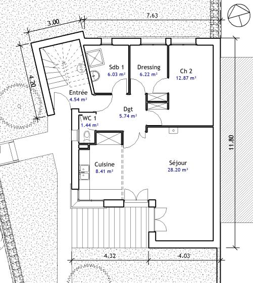
Situé à l'angle de plusieurs rues et en bordure de voies ferrées, le pavillon bénéficie d'une triple orientation en s'appuyant sur le pignon aveugle de la maison voisine. Le volume principal est chahuté, d'un côté par la cage d'escalier, désaxée, ce qui permet la liaison et le traitement de l'angle, et, côté sud par le prolongement du séjour formant balcon pour la grande chambre à l'étage.
CES = 97m2 - SP =142m2 .
30, avenue Saint Pierre
93150Le Blanc-Mesnil
France