Restructuration de la Mairie - Saint-Aubin Montenoy

Projet de Façade
Façade sur Rue
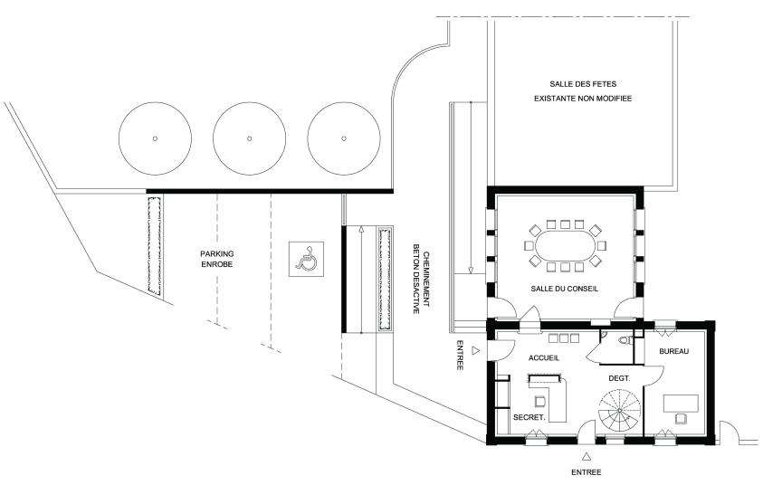
Plan de la Mairie
Façade sur Entrée
Salle de réunion
Vue depuis le jardin
Escalier de l'entrée
Banque d'Accueil
Tertiaire
Maître d’ouvrage
Commune de Saint-Aubin Montenoy
Architecte associé
Gérald LEFEBVRE Architecte

Place de l'Eglise
80540SAINT-AUBIN MONTENOY
France

2016
80 - Somme