Le Toit de Bavaroisie

Installation de la cuisine en profitant des rampants sous toiture
coin séjour
Le couloir central est traversant et généreux
Le dégagement au niveau de l'entrée
Le couloir central amène à la pièce de vie, et la baie vitrée principale
Aménagement de la salle de bain sous les rampants de toiture
Modèle de radiateur sélectionné : en Bavière tout est robuste
Détail du luminaire pour une ambiance intérieure cosy
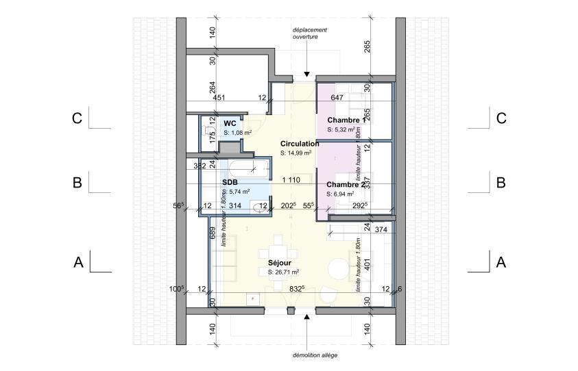
Plan de l'aménagement : les artisans Bavarois n'ont pas demandé de traduction
Rénovation, rénovation thermique

Cet aménagement de combles nommé "Le Toit de Bavaroisie" est terminé, chaleureux, lumineux, sous pentes optimisées - de quoi se reposer et profiter des montagnes aux alentours

Maître d’ouvrage
Privé

82497Unterammergau
Allemagne

2024