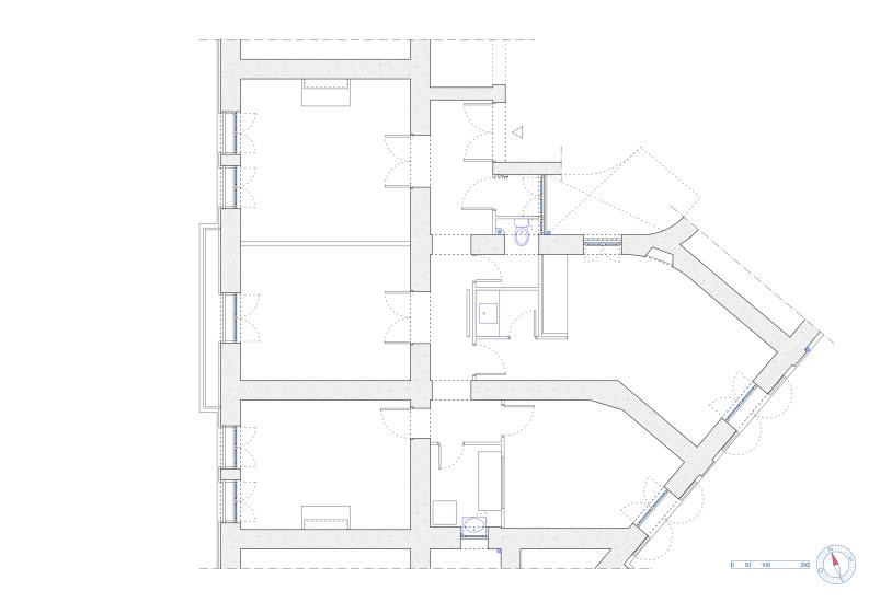
Transformation d'un cabinet

©jst
©jst
©jst
©jst
©jst
©jst
©jst
©jst
©jst
©jst
©jst
©jst
©jst
©jst
©jst
Rénovation, rénovation thermique

Un appartement fortement dégradé par son affectation en activité, dont on a cherché à restituer l'état originel en prononçant ses circulations tournantes, ses connexions spatiales et lumineuses.