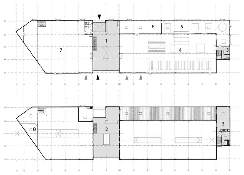
Miroiterie, atelier d’aluminium, showroom et bureaux - Roubaix

Miroiterie, atelier d’aluminium, showroom et bureaux - Vue depuis le quai de Gand
Miroiterie, atelier d’aluminium, showroom et bureaux - Vue depuis le quai de Gand
Miroiterie, atelier d’aluminium, showroom et bureaux
Miroiterie, atelier d’aluminium, showroom et bureaux
Miroiterie, atelier d’aluminium, showroom et bureaux
Miroiterie, atelier d’aluminium, showroom et bureaux
Lieu de travail
Situation : Roubaix (59)
  • Maître d’ouvrage : Privé
  • Maîtrise d’œuvre : agence larrondo architectes 
  • Surface SHON :  1740 m² 
  • Performance thermique : RT 2005
  • Calendrier : Livraison mars 2006
  • Budget prévisionnel 2009 : NC
Maître d’ouvrage
Privé
Architecte associé
Michel LARRONDO, Architecte DESL

Quai de Gand
Rue Meyerbeer
59100ROUBAIX
France

Mars 2006
59 - Nord