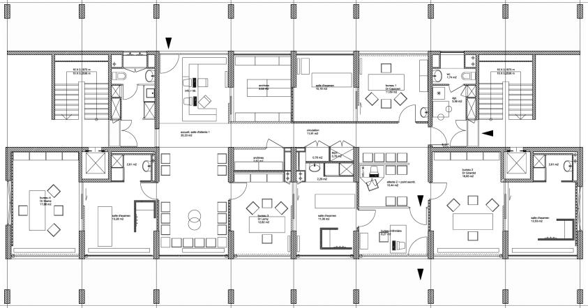
Aménagement d'un cabinet médical

Aménagement d'un cabinet médical
Aménagement d'un cabinet médical
Aménagement d'un cabinet médical
Aménagement d'un cabinet médical
Aménagement d'un cabinet médical
Lieu de travail
Situation : Lille (59)
  • Maître d’ouvrage : Privé
  • Maîtrise d’œuvre : agence larrondo architectes 
  • Surface SU :  200 m² 
  • Performance thermique :
  • Calendrier : Livraison juillet 2004
  • Budget prévisionnel 2009 : 1.200.000€ HT

 

 

 



 

Maître d’ouvrage
Privé

59000LILLE
France

Juillet 2004
59 - Nord