









Le bâtiment s’implante à l’angle de deux rues, dans le zone d’activités de COLGUEN.
Cette particularité du terrain permet de reporter les accès et stationnements des véhicules au Nord, offrant à la société Olan au Sud, dans la perspective d’arrivée dans la zone, un espace de représentation paysagé sur lequel s’ouvre l’ensemble de ses bureaux.
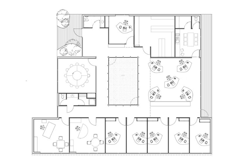
Le plan de l’ensemble s’organise en 3 strates depuis l’entrée au Nord vers les bureaux au Sud :
• La strate d’accueil avec terrasse bois plantée, pergola, accueil, archives et local personnel.
• La strate des espaces partagés avec salle de réunions, patio, plateau libre partagé et terrasse.
• La strate des bureaux qui se caractérise par une transparence sur toute la largeur du bâtiment, animée et tempérée par les stores aluminium extérieurs.
Le patio, élément central organisant l’ensemble des circulations, agit comme une boîte à lumière au cœur du bâtiment.
Maître d’ouvrage : SCI Trugarez – Jakez
SHON : 339 m²
Matériaux :
Structure poteau – poutre en lamellé collé ; façades en ossature bois fortement isolées, bardage douglas en lattes ajourées ; menuiseries aluminium anodisé argent ; panneaux de bardage en aluminium et verre translucide opale ; stores extérieurs en lames d’aluminium
Photos Dieter Kik ©