Rue de Lamballe - Extension

Présentation de la maison
Présentation de la maison avant travaux
Présentation de la maison avant travaux
Extrait dossier DP - Plan de masse
Extrait dossier DP - Coupes
Extrait dossier DP - Modélisation 3D
Extrait dossier APD - Façades
Extrait dossier APD - Façades
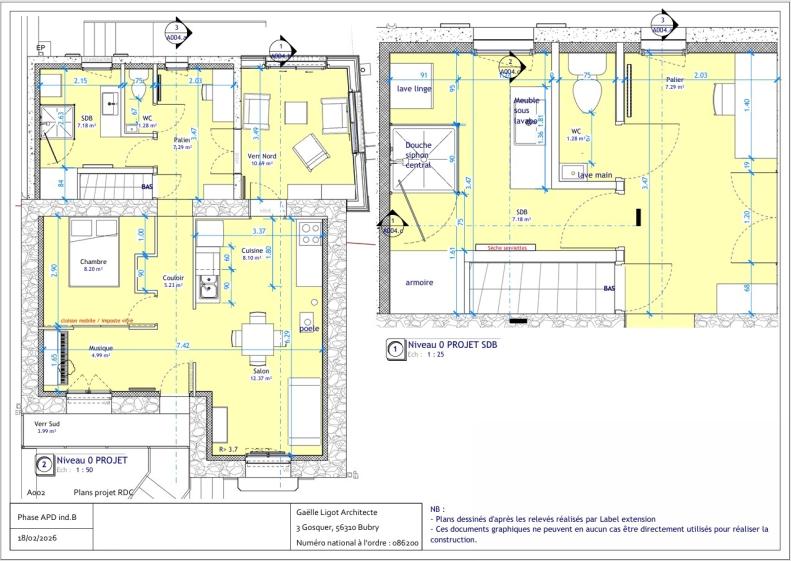
Extrait dossier APD - Plan RDC
Extrait dossier APD - Plan Sous Sol
Extrait dossier APD - Plan démolition
Extension, surélévation

Mission de conception pour l'extension et la rénovation d'une maison individuelle 

43 rue de Lamballe
22310Pléneuf Val André
France