





































_Commande publique _ Commune de Guerville
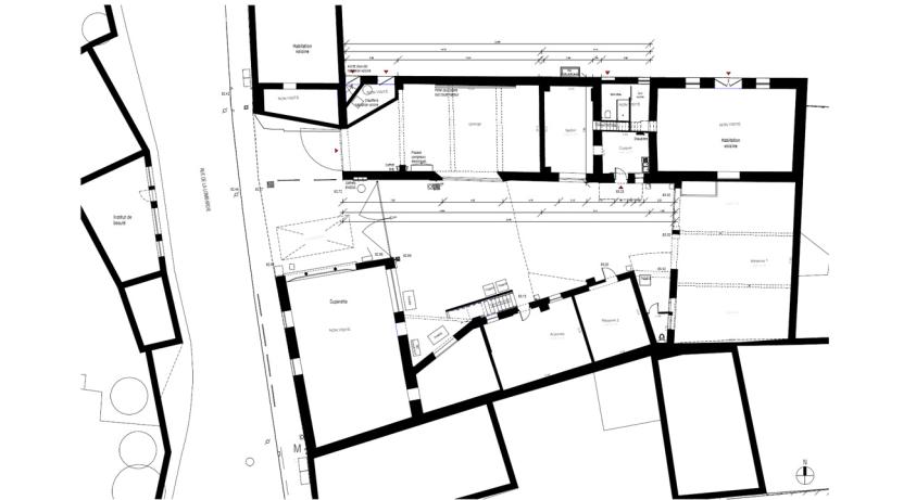
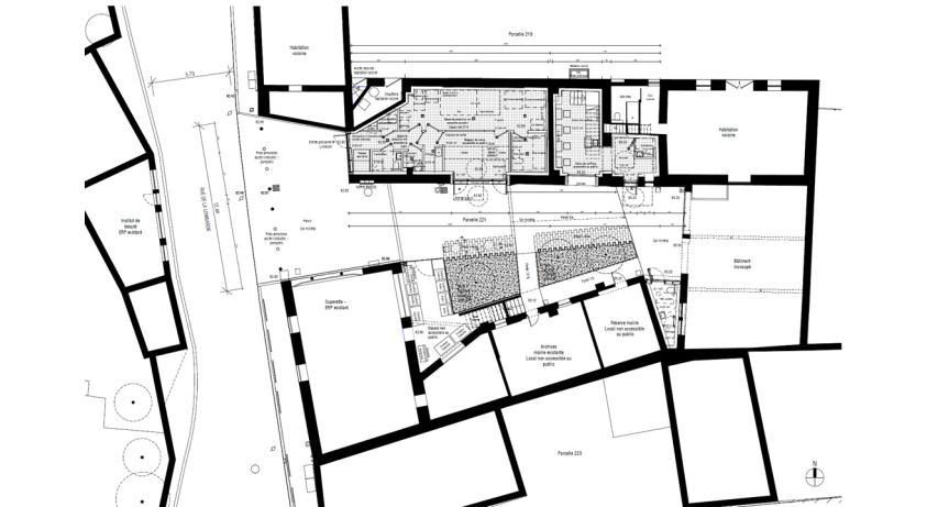
_645 000 € HT _ 160 m²
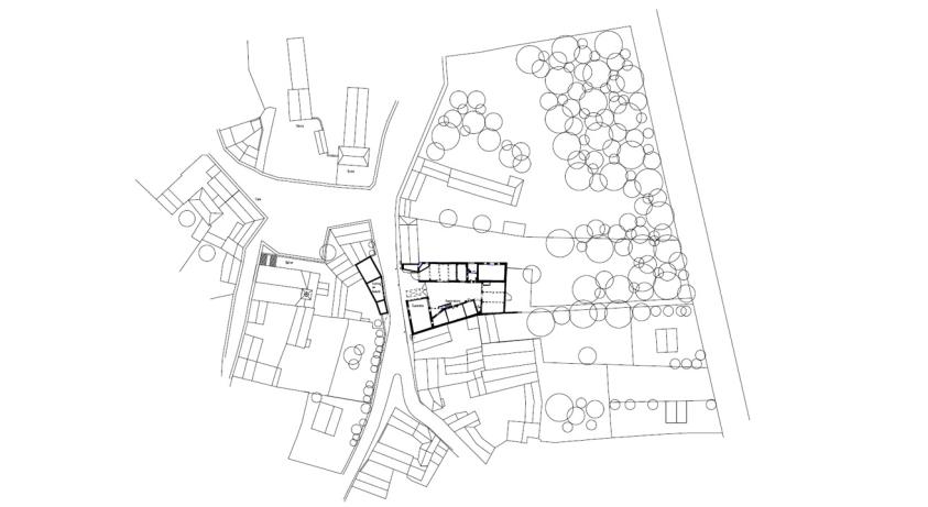
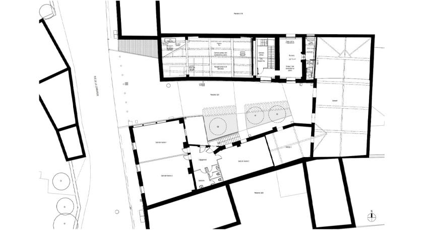
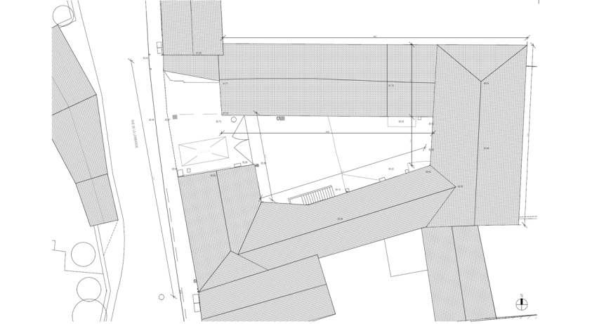
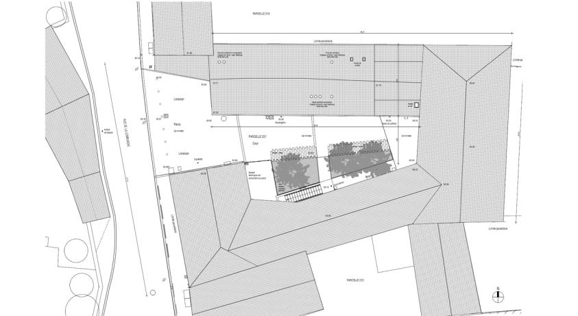
_Restructuration de l’existant en centre de village_ Matériaux biosourcés _ Végétalisation et gestion de l'eau de la cour
_Etudes en cours _ Livraison en 2026
_Mission complète + DIAG + OPC
_Architecte mandataire
_BET TCE + Economiste + Environnement : Pax ingénierie