














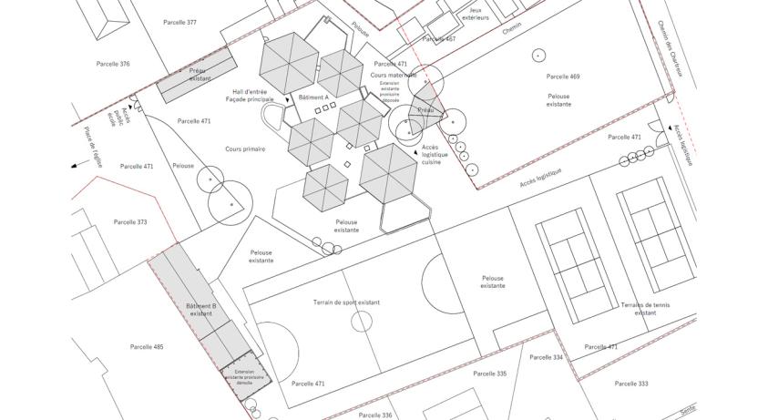
_Commande publique _ Commune de La Chapelle-Longueville
_Projet global 1,65 M € HT _ 1 000 m²
_Ecole maternelle, salle commune, espaces de restauration 1,2 M € HT _ 800 m²
_Réhabilitation thermique globale (gain sur Cep de 50%)_Matériaux biosourcés_Végétalisation de la cour_Mise en conformité accessibilité et sécurité incendie
_Appel d’offres en cours _ Livraison en 2026
_Mission complète + DIAG + OPC
_ Architecte mandataire
_BET TCE + Economiste + Environnement : Pax ingénierie
27950La Chapelle-Longueville
France