

























_Commande publique _ Commune de La Chapelle-Longueville
_Projet global 1,65 M € HT _ 1 000 m²
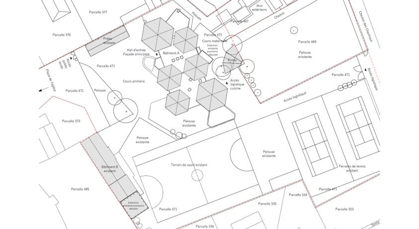
_Ecole primaire, bibliothèque, auvent, production photovoltaïque, terrains de sport 450 000 € HT _ 200 m²
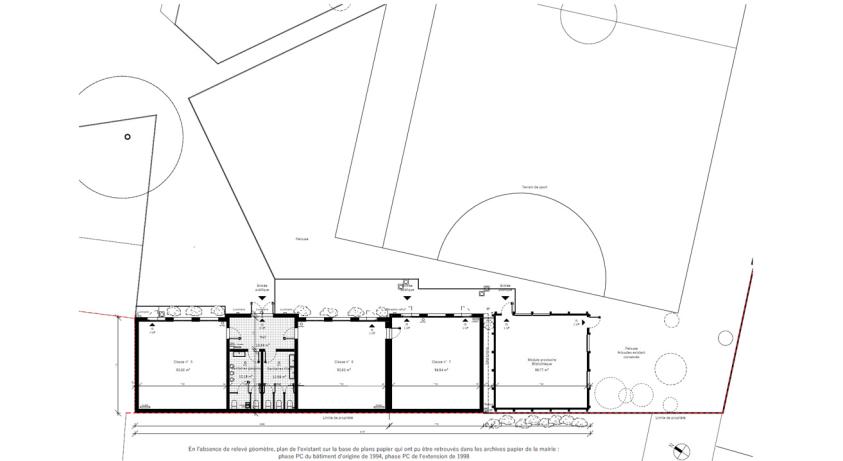
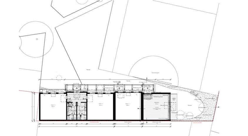
_Réhabilitation thermique globale (gain sur Cep de 79%)_Matériaux biosourcés_Production photovoltaïque_Mise en conformité accessibilité et sécurité incendie
_Appel d’offres en cours _ Livraison en 2026
_Mission complète + DIAG + OPC
_ Architecte mandataire
_BET TCE + Economiste + Environnement : Pax ingénierie
27950La Chapelle-Longueville
France