Réhabilitation et aménagement d'un appartement haussmannien

1
2
3
4
5
6
7
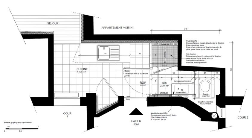
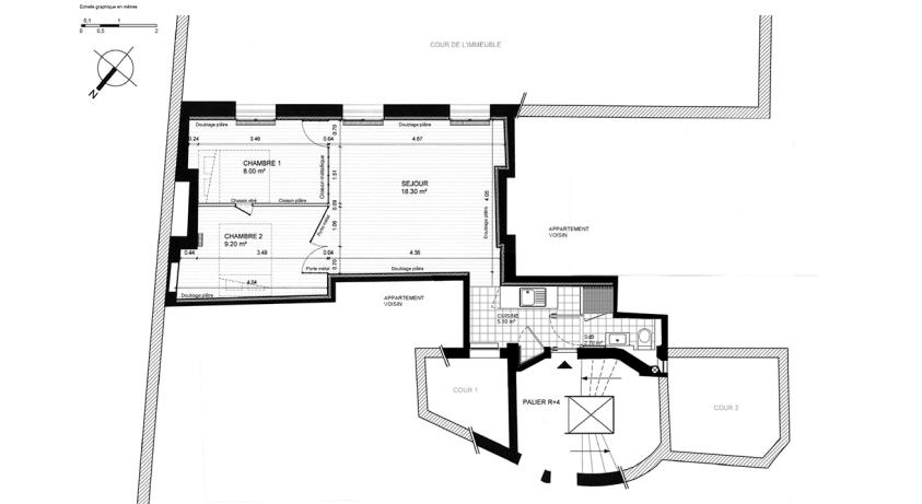
Rénovation, rénovation thermique

_Commande privée
_ 50 m²   -    20 000 € HT

_Restructuration de l'existant

_Livré en 2017

_Mission complète (conception et suivi de chantier) + DIAG

_Architecte mandataire
 

 

Maître d’ouvrage
Privé

75020Paris
France

Livré en 2017
75 - Paris