




































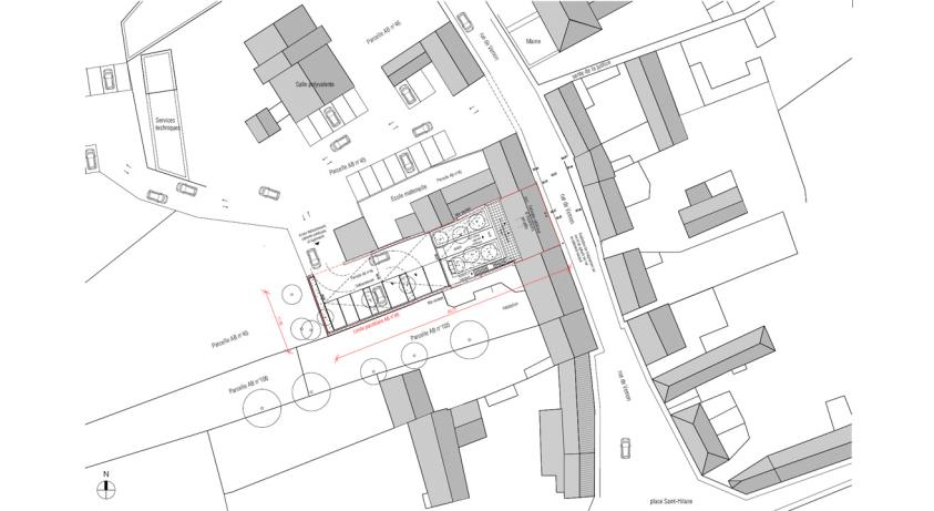
_ Commande publique_ Commune de Blaru
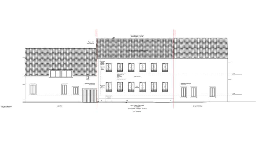
_ 850 000 € HT _ 180 m²
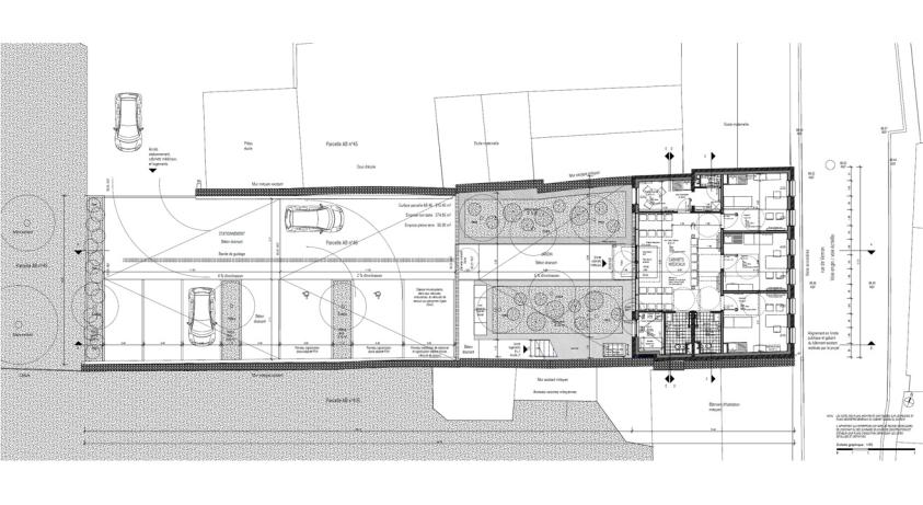
_ RT 2012 _ RE 2020 _ Analyse du cycle de vie des matériaux _ Matériaux biosourcés
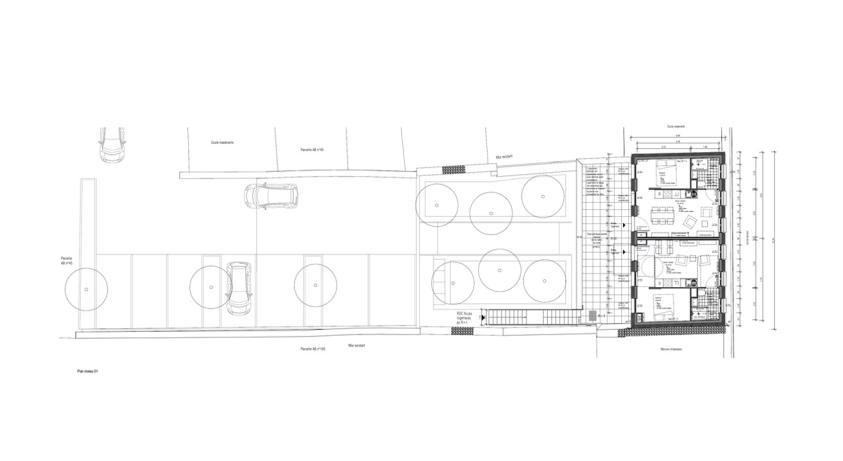
_ Chantier en cours _ Livraison 2025
_ Mission complète + DIAG + OPC
_ Architecte mandataire
_ BET TCE + Economiste + Environnement : Pax ingénierie