




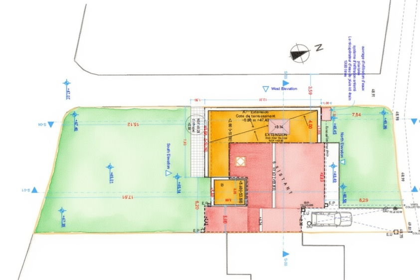
Le projet concerne une extension et une surélévation d’une maison d’habitation existante, située sur la commune de Betton (Ille-et-Vilaine), en tissu résidentiel pavillonnaire.
L’intervention s’inscrit dans une démarche de requalification architecturale globale, visant à adapter l’habitation aux usages contemporains tout en respectant l’échelle, les volumes et le caractère du bâti existant ainsi que son environnement immédiat.
Le projet repose sur un dialogue entre l’existant et des volumes contemporains clairement identifiés.
L’écriture architecturale distingue volontairement :
Cette composition permet une lecture claire du projet, où chaque intervention est lisible sans pastiche, tout en assurant une cohérence d’ensemble.