Construction d'une maison

Construction neuve
maison individuelle
architecture bioclimatique
site_-_couverture.jpg
site_-_sejour.jpg
site_-_cuisine.jpg
site_-_chambre.jpg
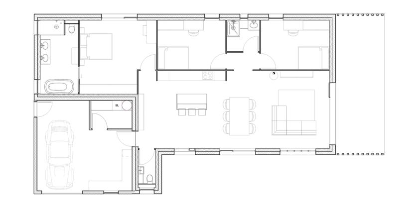
site_-_plan_rdc.jpg
Neuf

France

02-10-2023
34 - Hérault