







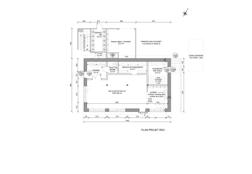
Bâtiment comprenant une salle polyvalente, un atelier, un bureau et des chambres d’amis. Construction : ossature bois avec isolation en paille – Surface de plancher (SDP) : environ 200 m².
Mission confiée : Obtention du permis de construire pour la maison commune et modélisation des autres espaces partagés.
Collaboration : Atelier 108 Architecte
La maison commune, cœur de l’écohameau du Plessis, sera le lieu central de partage et de vie collective. Elle se compose :
Ce projet, cofinancé par les habitants, sera réalisé en préfabrication paille, avec un bardage bois et des enduits terre.