EXTENSION DELANNOY 59 Cysoing

ANGLE NORD OUEST
ANGELE NORD EST
EP FACADES
EXISTANT PROJET PLANS
Extension, surélévation

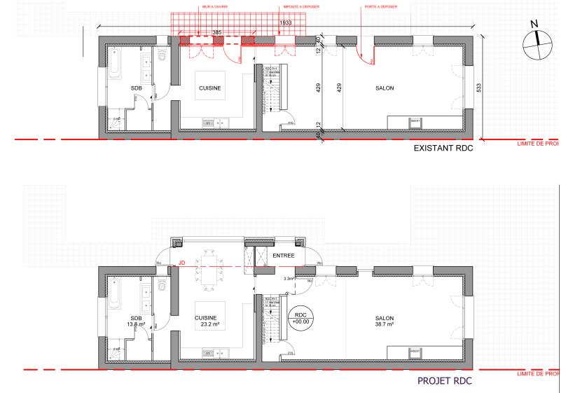
Extension à Cysoing (59) – 2021 Réalisation d’une extension pour un particulier.

L’extension comprend :

  • Au rez-de-chaussée : une nouvelle entrée pour l’habitation et l’agrandissement de la cuisine.
  • À l’étage : une suite parentale (chambre, salle de bain et dressing).
Maître d’ouvrage
DELANNOY

59830Cysoing
France

2021
59 - Nord