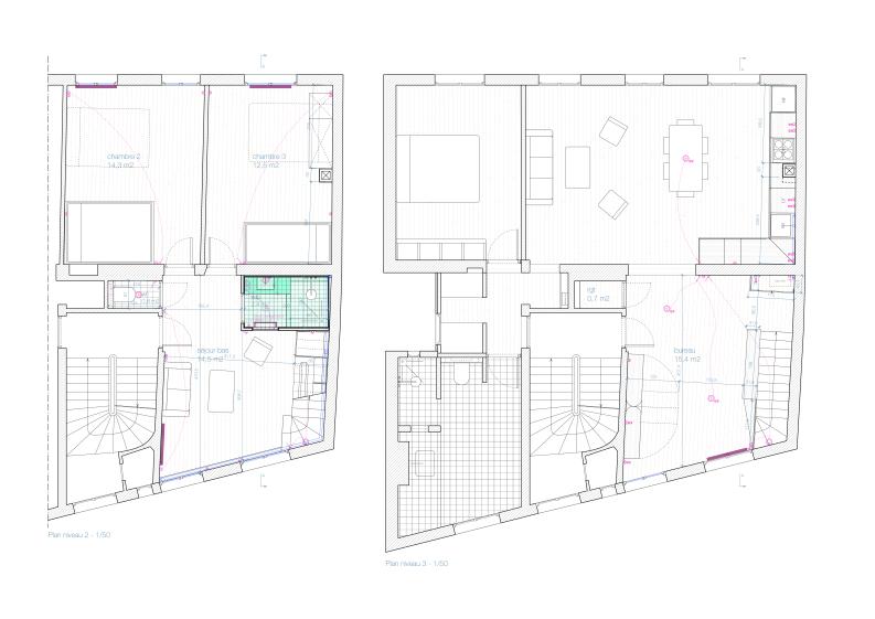
Création d'un duplex

©jst
©jst
©jst
©jst
©jst
©jst
©jst
©jst
©jst
©jst
©jst
©jst
©jst
©jst
©jst
©jst
©jst
Rénovation, rénovation thermique

Réunir deux appartements pour accueillir parents et enfants dans le même logement.
Les espaces dédiés à chacun sont séparés de fait, chacun son étage.