






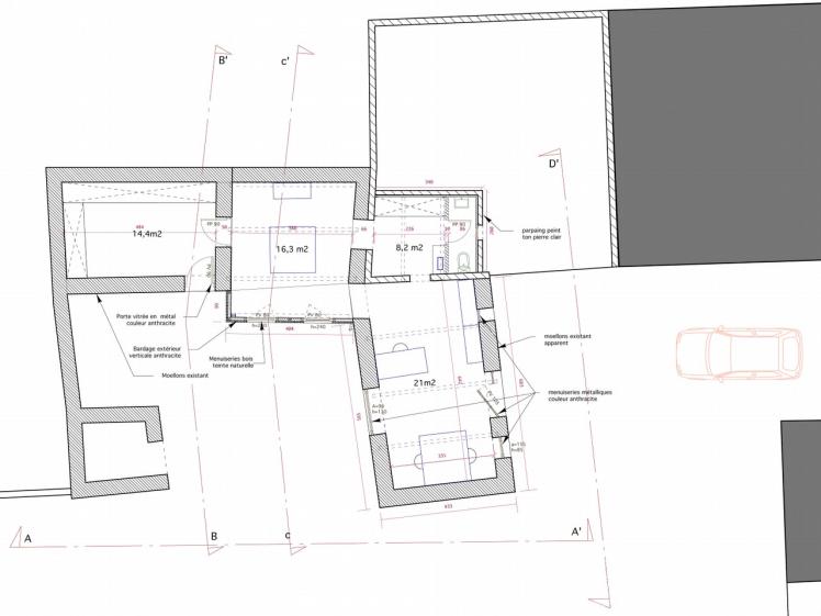
• Ville : Le Gua (17)
• Maitre d'ouvrage : Créarc'h architectes
• SHON : 45m2
• Nature de la mission : Réhabilitation de dépendances pour y implanter le cabinet d'architecture de Créarc'h architectes avec création d'une extension. La conservation des matériaux d'origine est une priorité, tandis que l'extension utilise des matériaux moderne, avec un bardage zinc anthracite pour contraster avec l'existant. Des menuiseries aluminium noir pour les façades en pierres et des menuiseries ton bronze pour l'extension permet d'accentuer ce jeu de contraste.
France