Aller au contenu principal
Menu
Fil d'Ariane
Accueil
ULRIKE PLOS_ARCHIUP
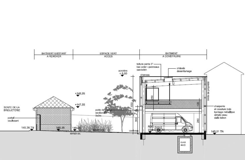
Construction atelier
Construction atelier
Lieu de travail
Maître d’ouvrage
privé
76160
Saint Jaques sur Darnetal
France
76 - Seine-Maritime
ULRIKE PLOS_ARCHIUP