Aller au contenu principal
Menu
Fil d'Ariane
Accueil
CAILLOUEL ALICE
Rénovation d'une maison individuelle
Rénovation d'une maison individuelle
Rénovation, rénovation thermique
Extension, surélévation
Habitat
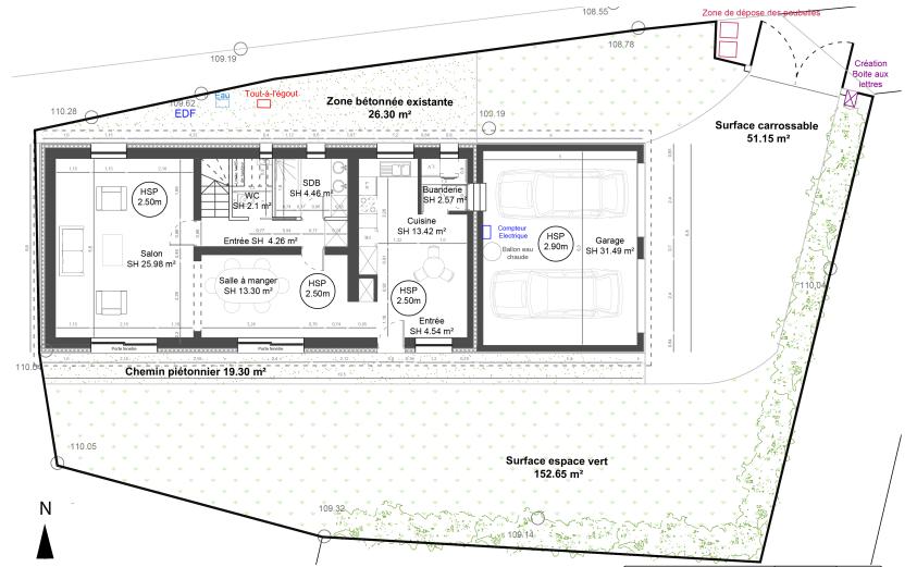
Le projet consiste en la rénovation d'une maison individuelle
Maître d’ouvrage
Roussel
76500
Elbeuf
France
Prévision 2018-2019
76 - Seine-Maritime
CAILLOUEL ALICE