Construction d'un chalet individuel à Chamonix

construction
chalet
1912insertion1.jpg
1912plandecoupecr.jpg
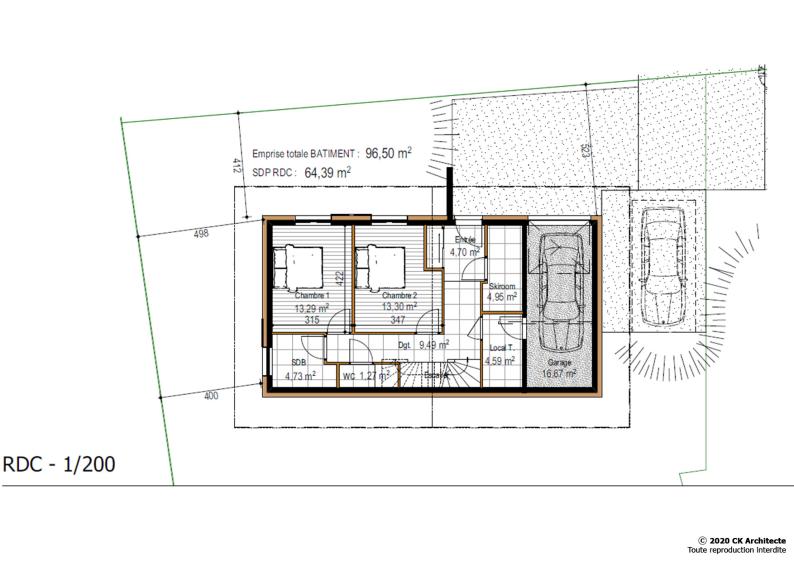
1912-plandeniveaucr.jpg
1912-planmasse.jpg
1912-planmassefacade-cr.png
planetages-cr.png
Neuf

Mission de permis
Construction d'un chalet, soubassement maçonné étage ossature bois
Suivi des contraintes PLU et PPR
Orientation du projet pour garantir la vue sur les massifs du Mont Blanc"

Maître d’ouvrage
Privé

74400Chamonix-mont-blanc
France

permis accepté
74 - Haute-Savoie