






La maison est trop petite pour la famille. Il a été décidé de l'étendre côté jardin dans la limite des vingt mètres. La toiture sera démolie, l'étage de rez de chaussée sera démoli.
L'extension prévoit l’ajout d’un étage complet.
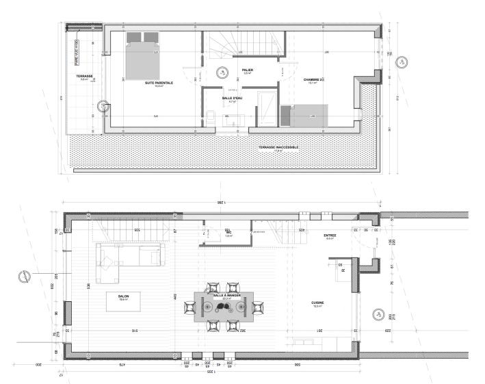
Elle se compose comme suit :
- Une entrée avec une petite terrasse sera créer en façade évitera l'effet massif d'un mur plein en pignon. Un auvent en béton marquera l'entrée de la maison.
- Trois trames de pavé de verre seront réalisées afin que la lumière naturelle entre dans la pièce à vivre principale.
- Une grande baie vitrée donne sur le jardin en rez de chaussée.
- A l’étage trois chambres, deux côté rue et une coté jardin avec une terrasse filante avec garde corps vitré.
- Deux salles de douche avec WC seront créer. - Un garage sera aménagé en sous-sol.
En façade, un jeu avec du bardage bois foncé et un crépis gratté ton pierre claire apporte un caractère contemporain à la maison en cohérence avec le traitement des espaces intérieurs. En sous-bassement un crépi plus foncé sera réalisé.