39 LOGEMENTS SOCIAUX - PARIS Xème

vue extérieure hall d'entrée
vue depuis la rue d'Aix et la rue Louvel-Tessier
hall d'entrée
vue de la cour jardin
vue aérienne
vue aérienne
vue depuis la rue
vue depuis la cour
hall d'entrée
vue de la cour
détail balcon
plan masse
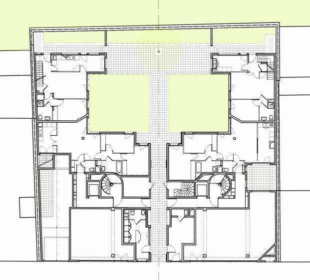
plan du R+2
plan du RDC
Habitat

CONSTRUCTION NEUVE
• Ville : PARIS 11e
• BET & économiste : OTHEM
• Coût : 3.961.400 € HT
• SHON : 3.180 m²
• Nature de la mission : base loi MOP

Maître d’ouvrage
PARIS HABITAT OPH
Architecte associé
A. DEMIANS / B. HERBERT

5-7 rue Louvel Tessier
75010PARIS
France

2001
75 - Paris