Aller au contenu principal
Menu
Fil d'Ariane
Accueil
Céline Parisse Architecte Hmonp (Dplg) & Intérieur
Boulogne-Billancourt
Boulogne-Billancourt
rénovation de l'habitat
Rénovation énergétique
optimisation de l’espace
agencement
Rénovation, rénovation thermique
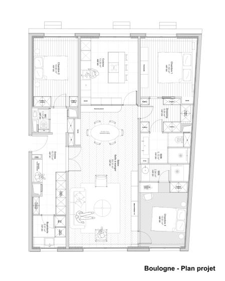
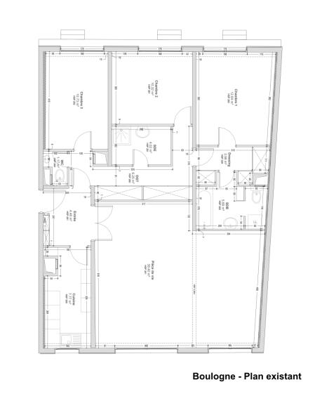
Rénovation complète d'un appartement de 110m²
Maître d’ouvrage
Privé
Architecte associé
multiplle studio
47 rue d'aguesseau
92100
Boulogne-Billancourt
France
2026
92 - Hauts-de-Seine
Céline Parisse Architecte Hmonp (Dplg) & Intérieur