Aller au contenu principal
Menu
Fil d'Ariane
Accueil
BELLE VILLE ATELIER D'ARCHITECTURE
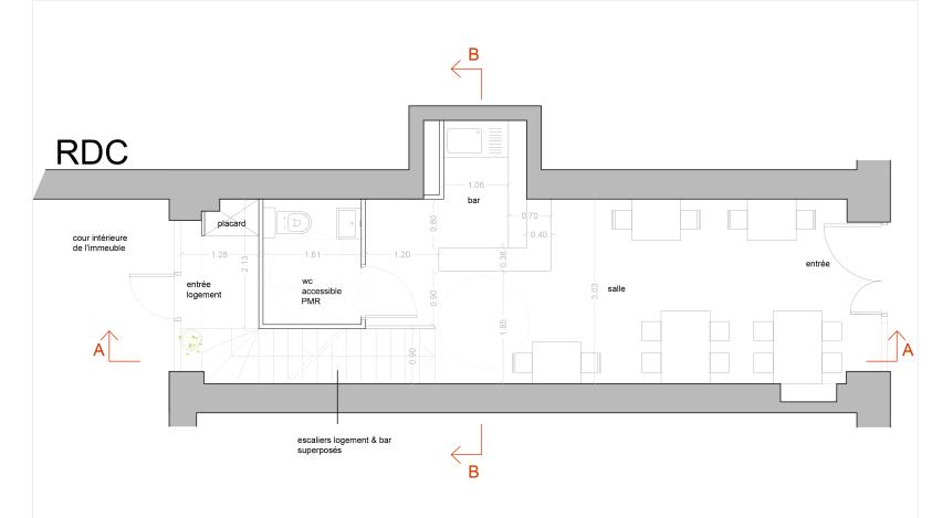
Salon de thé + appartement rue Marivaux, Paris
Salon de thé + appartement rue Marivaux, Paris
Etablissement recevant du public (ERP)
Maître d’ouvrage
Privé
rue Marivaux
75002
Paris
France
2016
75 - Paris
BELLE VILLE ATELIER D'ARCHITECTURE