







Le site de projet présente une organisation en faysse caractéristique en Ardèche. Il est marqué par la présence de deux murets de soutènement en pierres sèches qui traversent le terrain, avec une ancienne bande cultivée relativement plane et une déclivité plus importante vers les espaces boisés. La construction est implantée en partie haute du terrain pour profiter du surplomb et des vues dégagées vers le paysage.
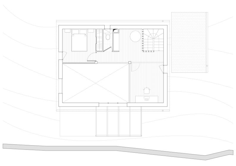
Le projet est constituée de géométries simples pour assurer une bonne compacité, gage d’économies d’énergie. Un abri de jardin contre la maison complète l’ensemble bâti et protège la façade nord des vents dominants. L’orientation de la maison et la position des ouvertures permettent de profiter d’un ensoleillement optimisé et donc de bénéficier au maximum des apports solaires naturels durant toute la journée. Une pergola abrite la terrasse et protège la façade sud des fortes chaleurs.
Les fondations de type « pilotis » (plots en béton) permettent d’implanter le bâtiment au plus près de la topographie naturelle du terrain, tout en conservant une garde au sol nécessaire dans le cadre d’une construction en ossature bois. Cette méthode constructive limite également l’imperméabilisation et le recours à du terrassement.
La structure à ossature bois (filière sèche) et le recours à des isolants biosourcés (laine de bois et chanvre-coton-lin) améliorent fortement le bilan carbone de la construction. Pour pallier au manque d’inertie thermique d’une maison en ossature bois, un mur en briques de terre comprimée est adossé au poêle à bois afin d’accumuler la chaleur et de la rétribuer. Les espaces sont conçus pour pouvoir évoluer et accompagner les changements de vie du foyer : ajout d’une chambre, agrandissement du séjour, etc.