







Le projet prend place entre les équipements existants de l’école primaire et du gymnase, non loin du collège et au coeur d’une zone pavillonaire de la commune d’Etrechy.
Le bâtiment est créé de plain-pied pour permettre un usage aisé aux enfants, dans la continuité des espaces de l’école et des cours de récréation, ainsi que dans le respect des volumes et gabarits voisins.
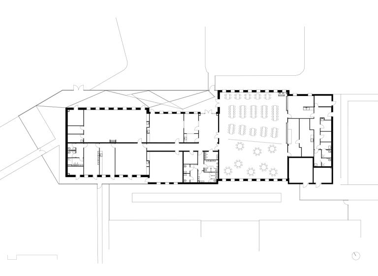
Le bâtiment est conçu morcelé en quatre volumes rendant lisibles les fonctions qu’il abrite et ne donnant pas prise à la monotonie.
Deux premiers volumes accueillent le centre de loisirs, lui même scindé entre les espaces d’activités et les espaces d’accueil/sanitaires. Deux second volumes accueillent le réfectoire puis l’office et les locaux techniques, donnant sur l’accès arrière au bâtiment, zone de livraison technique.
Le parti architectural est celui d’une architecture contemporaine, sans pastiche, s’intégrant dans son environnement grâce aux volumétries simples en échos aux existants voisins.
Deux volumes, les plus hauts et accueillant les espaces les plus lumineux, sont revêtus de brique blanche moulée main, intégrant ponctuellement des briques émaillées de teinte bronze-doré ensoleillant les façades. Deux volumes plus sobres s’intercalent ensuite, en enduit lissé fin, de teinte blanche, et de hauteurs inférieures au premiers.
Les menuiseries rappellent les teintes bronze-dorées des briques en modénature et rythment ainsi le projet qui jouent des teintes blanche et jaune voisines et d’effets de matière.
Enfin, les abords sont plantés d’essence d’arbres et d’arbustes répondant aux teintes du bâtiment pour une harmonie totale et une cohérence des différents équipement entre eux.