Aller au contenu principal
Menu
Fil d'Ariane
Accueil
ULRIKE PLOS_ARCHIUP
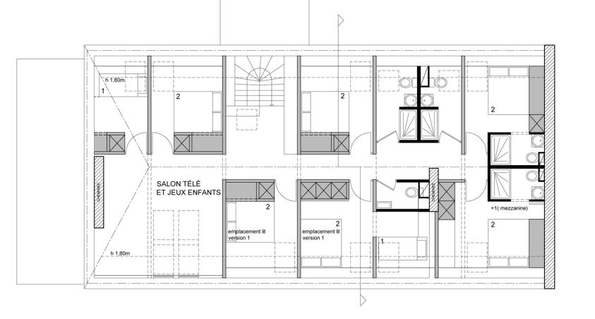
Aménagement Combles Gite
Aménagement Combles Gite
Rénovation, rénovation thermique
76450
Ourville-en-Caux
France
76 - Seine-Maritime
ULRIKE PLOS_ARCHIUP