





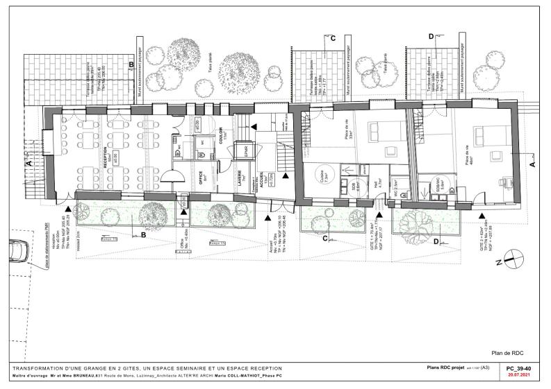
Programme : réhabilitation d’une ancienne ferme en pisé en une salle de séminaire au R+1, une salle de réception avec office de réchauffe au RDC, et 2 gîtes attenants.
Système constructif: mur en terre crue existant (pisé), création de murs ossature bois pour fermer certains espaces anciennement ouverts
Dispositifs environnementaux: utilisation de matériaux naturels et perspirants compatibles avec les constructions existantes en pisé:
Isolation en mur et en toiture: 14.5cm de laine de bois contre les murs en pisé + frein vapeur + vide technique + placo ou isolation par l’extérieur avec fibre de bois et enduit à la chaux et 30 à 40cm de ouate de cellulose en toiture.
Murs intérieurs en pisé: enduit terre, mise en valeur des soubassement en galets existants et ouvertures dans les murs avec encadrement en bois
Pompe à chaleur
Récupération des eaux de pluie pour réutilisation domestique (WC, lave linge, arrosage, …)
Système de phyto épuration pour l’assainissement non collectif de type Aquatiris