






La ferme de la Noue est nichée dans le vallon verdoyant de la Celle les Bordes typique de la vallée de Chevreuse. Limitée par les berges de l’Aulne en contrebas et par la route départementale en partie haute, la ferme constitue la partie la plus importante d’un petit hameau, composé de constructions, jardins, vergers et prés qui se confondent les uns dans les autres. L’utilisation du bardage bois(utilisé traditionnellement sur les granges locales) lors de la rénovation faite il y a quelques années de la grange principale montre la volonté d’inscrire la ferme dans un cadre de développement durable et qualitatif en terme d’insertion dans le paysage. Le projet créé s’inscrira dans la continuité de cette exigence.
La ferme est composée :
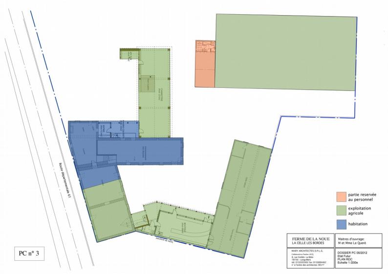
- D’un corps de ferme constitué de deux parties, une partie plus ancienne implantée en limite parallèlement à la route départementale, abrite à RDC un espace vente, un espace destiné à la fabrique de fromage(tous deux devenus trop exigus) et un vaste espace de stockage, une seconde partie reliée à la première est implantée perpendiculairement à la RD 61 et constitue principalement la partie habitation de la Ferme.
- D’un bâtiment accolé à la plus grande des granges abritant un bureau et une zone d’accueil pour le personnel.
- De deux granges, une grange principale implantée perpendiculairement à la RD 61 remplie à la fois la fonction d’entrepôt du matériel agricole et de chèvrerie, une grange de taille plus réduite accueille les chevreaux et accueillera une fois le projet réalisé la nurserie et la fromagerie.
Le projet proposé consiste à réaliser plusieurs extensions afin de répondre aux nouvelles exigences de la Ferme à la fois en terme de fonctionnalité et en terme de surface .
1/ La boutique devenue trop exiguë, une première extension sera créée, reliant le corps du bâtiment parallèle à la RD 61 (actuelle boutique, fabrique et réserves) à la fromagerie. Ce bâtiment sera construit en limite de propriété et s’appuiera sur un mur de clôture existant implanté en limite et faisant partie de la propriété. Cette extension comprendra à RDC un vaste espace de vente et à l’étage une zone de stockage, largement vitré sur sa façade Nord et aveugle sur sa façade Sud, le bâtiment refermera visuellement la cour de la Ferme afin de créer un espace central paysagé et accueillant pour les visiteurs. Dans le prolongement de la boutique et en articulation avec le bâtiment existant sera crée un escalier hors œuvre permettant un accès à l’étage dudit bâtiment dans le but d’un aménagement futur (type gîte), cette construction ouverte sur trois de ces faces formera un volume ouvert et léger en ossature bois marquant l’articulation entre les deux bâtiments sans effet de masse.
2/ Le second bâtiment type « charreterie » apportera une zone d’accueil conviviale et protégée où les visiteurs groupés autour d’un four à pain traditionnel pourront déguster les produits de le Ferme. Ce bâtiment construit perpendiculairement au bâtiment d’habitation,balisera l’accès à la cour de ferme et permettra d’aménager un espace vert privatif devant l’habitation. Cet espace sera partiellement clos (palissades bois, murets en pierres des champs, zone de stockage bois) afin de protéger des regards l’espace privatif.
La coursive existante sera détruite, refaite et revue dans ses proportions afin de permettre d’aménager un accès direct depuis la coursive au niveau( R+1) de l’habitation. La charreterie et la coursive ont été pensées de manière à préserver des transparences tout en offrant des surfaces abrités délimitant de nouveaux espaces et permettant de créer un nouvel accès.
3/ Un petit bâtiment couvert d’un toit à une seule pente sera construit dans le prolongement de l’actuel bâtiment personnel et accueillera un espace sanitaire devenu indispensable.
4// Un petit bâtiment couvert d’un toit à une seule pente sera construit pour protéger les ouvrages d’assainissement.
Ces constructions additives se veulent respectueuses du jeu de constructions existantes et seront réalisées avec des soubassements en pierres des champs et recouverts d’un enduit à pierres affleurantes « ton pierre », le bardage utilisé sera identique à celui existant déjà sur les granges et grisera naturellement, les volets et menuiseries seront peintes ou repeintes en bleu gris (RAL préconisé par le parc).
Des ouvertures supplémentaires seront créées dans l’existant :
- Deux accès dans la grange principale pour l’accès à la chèvrerie.
- Une fenêtre et une lucarne à l’emplacement d’une actuelle fenêtre de toit, dans le bâtiment d’habitation.
- Trois fenêtres seront créées sur la façade donnant sur la RD 61 afin de rééquilibrer la façade et offrir à l’étage une vraie qualité de lumière et de vue sur le paysage en vue d’un aménagement futur.
Le système d’assainissement sera un système semi collectif individuel.
• Coût :
• SHON : 92m2 (total ensemble du site 560m2)
• Nature de la mission : Esquisse, PC