Aller au contenu principal
Menu
Fil d'Ariane
Accueil
ADÈLE VALLÉE
Extension d'une maison individuelle liée à une exp...
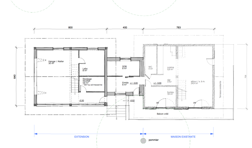
Extension d'une maison individuelle liée à une exploitation agricole
Extension, surélévation
France
2019
73 - Savoie
ADÈLE VALLÉE